Le nouveau complexe médical Robinson est situé à l’angle des rues York et Montcalm, à deux pas de l’hôpital de Granby. Le projet de 11 M$ représente l’un des plus grands carrefours santé de la région. Réuni sur trois étages, le projet de 40 000 pieds carrés répond aux besoins grandissants en santé de la population.
Caractéristiques et avantages
- Emplacement stratégique dans un secteur dynamique :
Située sur le boulevard Montcalm, artère très fréquentée de Granby, offrant une excellente visibilité. Accès facile, à proximité de commerces, zones résidentielles et stationnement disponible.
- Infrastructures modernes et adaptées :
Espaces aménageables selon vos besoins professionnels.
- Synergie avec d’autres professionnels et services :
Plusieurs spécialités médicales sous un même toit, favorisant la collaboration interdisciplinaire.
Caractéristiques de l'espace
Superficie totale
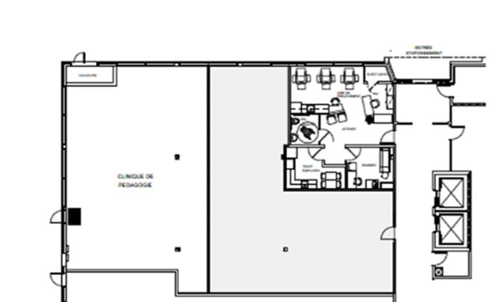
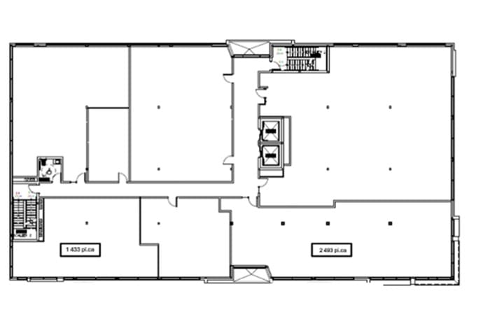
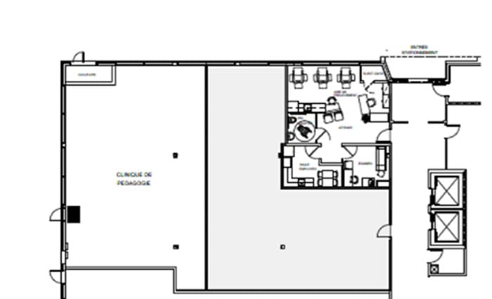
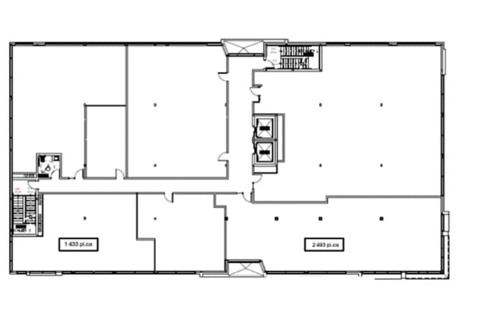
Rez-de-chaussée | 1 930 pi², 2e | étage 1 433 pi², 2e | étage 2 493 pi²
Accès personnes à mobilité réduite
Oui
Loyer de base
Prix net/pi²
Frais d’exploitation
8,85 $/pi²
Allocations locatives
Oui
Énergie
Au frais du locataire
Terme du bail
5 ans | 10 ans
Disponibilité
Immédiate
Stationnement
Borne de recharge pour véhicules électriques
Les informations présentées (prix, superficies, disponibilités, caractéristiques, etc.) sont fournies à titre indicatif seulement et peuvent être modifiées sans préavis. Aucune garantie n’est donnée quant à leur exactitude ou leur disponibilité au moment de la consultation.
Locataires
GMF – Polyclinique du Quartier
Pharmacie Familiprix
Physio Atlas
L’École privée clinique pédagogique
Groupe Ergo Ressources
Lobe Réseau
Centre de prélèvements Granby
Biron Groupe santé – Prélèvement et soins du sommeil
Recherchés
Infirmières spécialisées
Orthopédiste/orthoprothésiste
Clinique de psychologie
Optométrie
Dermatologie
Clinique du voyageur
Nutritionniste
Café-Bistro
Commercial (Magasin de produits de santé naturels / Alimentation saine)
Vous souhaitez en savoir plus sur cet espace ?
Joignez-nous au 514-447-9703 ou envoyez-nous un message.
Un conseiller vous contactera pour répondre à vos questions et vous proposer la solution la plus avantageuse pour vous.
Tous les champs sont obligatoires.
Projets similaires
Location + Vente + Gestion immobilière
-
Complexe médical des Bâtisseurs - Salaberry-de-Valleyfield
Médical
616, chemin Larocque, Valleyfield (QC) J6T 4C5
30000 pi ca
-
Complexe Delta Santé - Gatineau
Médical
444 Boulevard de l'Hôpital, Gatineau, QC J8T 7X6, Canada
45000 pi ca
-
Complexe Santé des Trois Lacs - Vaudreuil-Dorion
Commercial, Médical
2555, rue Dutrisac, Vaudreuil J7V 8C1
100000 pi ca