Situé au 39, rue Laurier Est, le Complexe médical de Victoriaville se distingue par sa localisation au cœur du quartier du Vieil-Arthabaska. Situé en face de l’Hôpital Hotel-Dieu d’Arthabaska, le complexe bénéficie de la présence de plusieurs espaces naturels, musées, et écoles dans son environnement.
Caractéristiques et avantages
- Visibilité :
Le complexe est situé en face de l’Hôpital Hôtel-Dieu d’Arthabaska, offrant une excellente visibilité.
- Commodité :
Place de stationnement disponible
- Accessibilité routière :
Facilité d’accès grâce à la proximité des transports en commun. Proximité de l’autoroute 20, principale artère reliant plusieurs grandes villes de la région.
- Emplacement stratégique :
Situé au cœur de Victoriaville, dans une zone à fort potentiel de développement.
Caractéristiques de l'espace
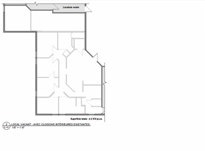
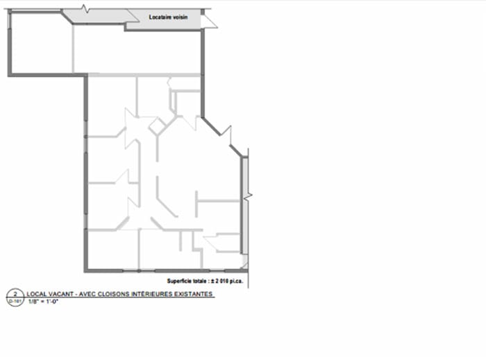
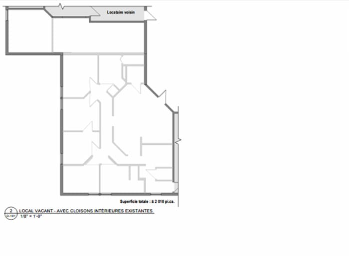
Superficie totale
Rez-de-chaussée | 1225 pi², 2e | étage 2 312 pi²
Accès personnes à mobilité réduite
Oui (Stationnement accessible au 2e étage)
Loyer de base net
Prix net/pi²
Frais d’exploitation
8,60 $/pi²
Allocations locatives
Oui
Énergie
Au frais du locataire
Terme du bail
5 ans | 10 ans
Disponibilité
Immédiate
Stationnement
Borne de recharge pour véhicules électriques
Les informations présentées (prix, superficies, disponibilités, caractéristiques, etc.) sont fournies à titre indicatif seulement et peuvent être modifiées sans préavis. Aucune garantie n’est donnée quant à leur exactitude ou leur disponibilité au moment de la consultation.
Locataires
GMF – Clinique Familiale d’Arthabaska
123 Dentiste
Physiothérapie Extra
Bayshore
Radiologix
Clinique podiatrique Daniel Auger
Clinique gynécologique
Recherchés
Pharmacie clinique
Soins esthétiques
Soins du sommeil
Audiologie
Audioprothésiste
Centre de prélèvements
Clinique du voyageur
Orthoprothésiste
Nutritionniste
Yoga centre bien-être
Infirmières spécialisées
Commercial (Magasin de produits de santé naturels / Alimentation saine)
Vous souhaitez en savoir plus sur cet espace ?
Joignez-nous au 514-447-9703 ou envoyez-nous un message.
Un conseiller vous contactera pour répondre à vos questions et vous proposer la solution la plus avantageuse pour vous.
Tous les champs sont obligatoires.
Projets similaires
Location + Vente + Gestion immobilière
-
POLYCLINIQUE DU QUARTIER – GRANBY - Granby
Médical
215 Boulevard Montcalm, Granby, QC J2G 5C1, Canada
40000 pi ca
Emplacement stratégique dans un secteur dynamique
Infrastructures modernes et adaptées
Synergie avec d’autres professionnels et services
-
Complexe médical Ormstown
Médical
55 rue Isabelle, Ormstown (QC) J0S 1K0
16000 pi ca
-
Clinique médicale Châteauguay - Châteauguay
Médical
288, boulevard d’Anjou, Châteauguay J6K 3A9
33000 pi ca